
Berlin Charlottenburg
FUTUREWORKS S9
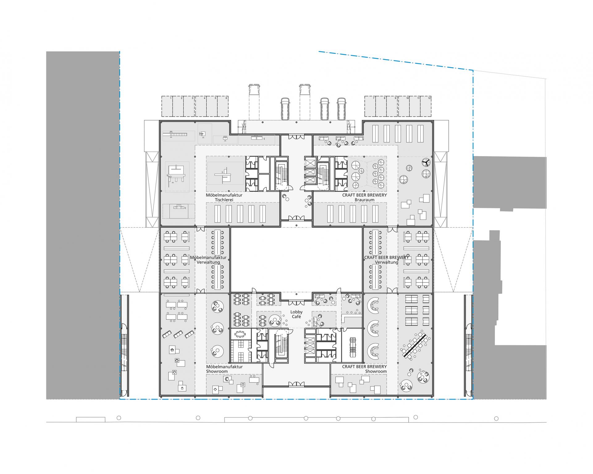
In the digital age, CAD-based factories and productions are becoming increasingly important.
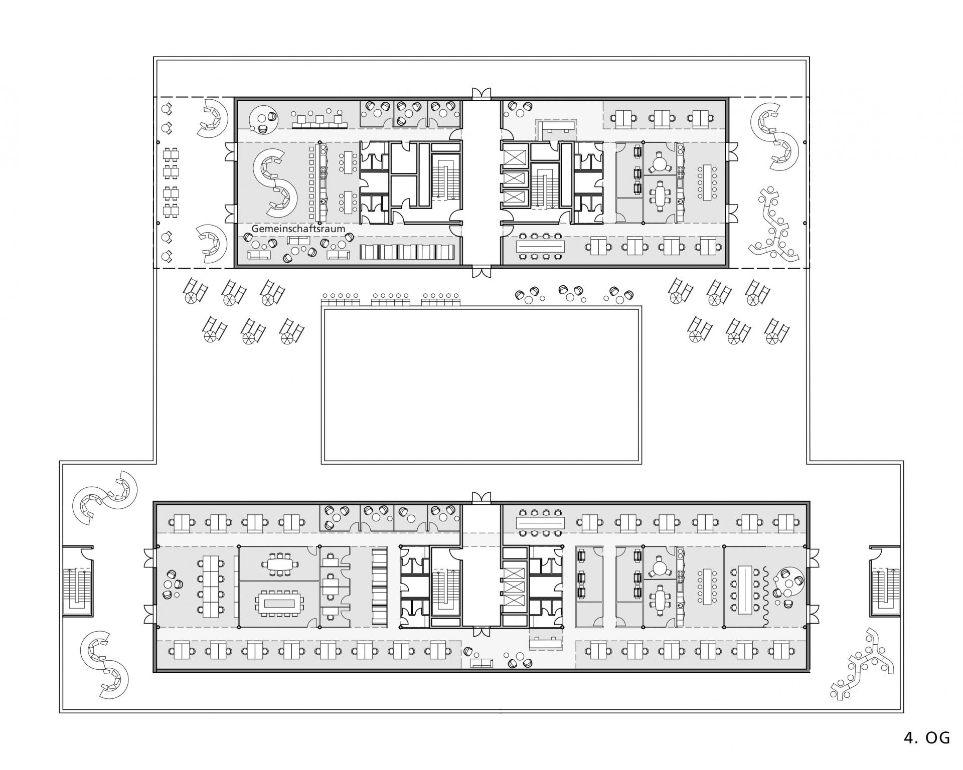
The basis for planning the proposed building is the change in the working world.
The production in mass series is increasingly of individualized small series, e.g. thanks to the rapidly developing material technology of 3D printers added. These products are created in the immediate vicinity of their development, design and marketing. The office work area is also dominated by creative services today, as the classic "clerk functions" are increasingly being replaced by algorithms. This change in the world of work and production results in new forms of work that are shown in a future-oriented building and can develop synergies together.en.
Facts and Figures
Location
Sickingenstraße 9,
10553
Berlin
Area
20.019 m²
Sector
Flexible Office Building,
6 floors
Client
HB Reavis
Order Type
Design Concept,
competition 2019
Visualization
CollignonArchitektur




Back to